產品簡介
SZ振動輸送機是借助振動作用連續(xù)輸送物料的設備。可用于水平、緩傾斜或垂直運輸(沿螺旋槽上升)各種松散物料。在輸送過程中可同時完成篩分、干燥、脫水、冷卻、混合等工藝。對粉塵多和含有害成分的物料還可用密封的槽體輸送。
適用行業(yè)
適用于煤炭、礦山、冶金、建材、化工、玻璃、電力、機械、糧食等行業(yè)。
適用物料
可輸送各種粒度的物料,能對灼熱的、易燃易爆的、有毒的、多塵的物料實行封閉輸送。
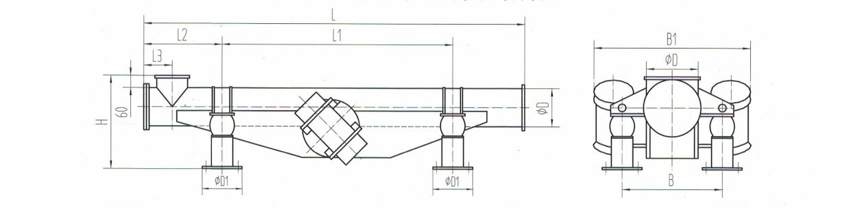
產品結構
主要由激振器、承載槽、彈簧和機架等組成。
工作原理
當槽體向前振動時,依靠物料與槽體間的摩擦力把運動能量傳遞給物料,使物料加速運動,此時物料的運動方向與槽體的振動方向相同。當槽體向后振動時,物料因受慣性作用,仍將繼續(xù)向前運動,槽體則從物料下面往后運動,由于運動中阻力的作用,物料越過一段槽體又落回槽體上。當槽體再次向前振動時,物料又因受到加速而被輸送向前。如此重復循環(huán),實現物料的輸送。
產品特點
SZ水平輸送機輸送形式可做成一口進料多口卸料或多口進料一口卸料等形式。該機形式具有結構簡單、安裝維修方便、耗能低、無粉塵溢散、槽體磨損小、噪聲低等優(yōu)點。
型號說明








客服1